projects
products
stories
team
about
news
contact
HR
EN
ZH
Back to project
Photo
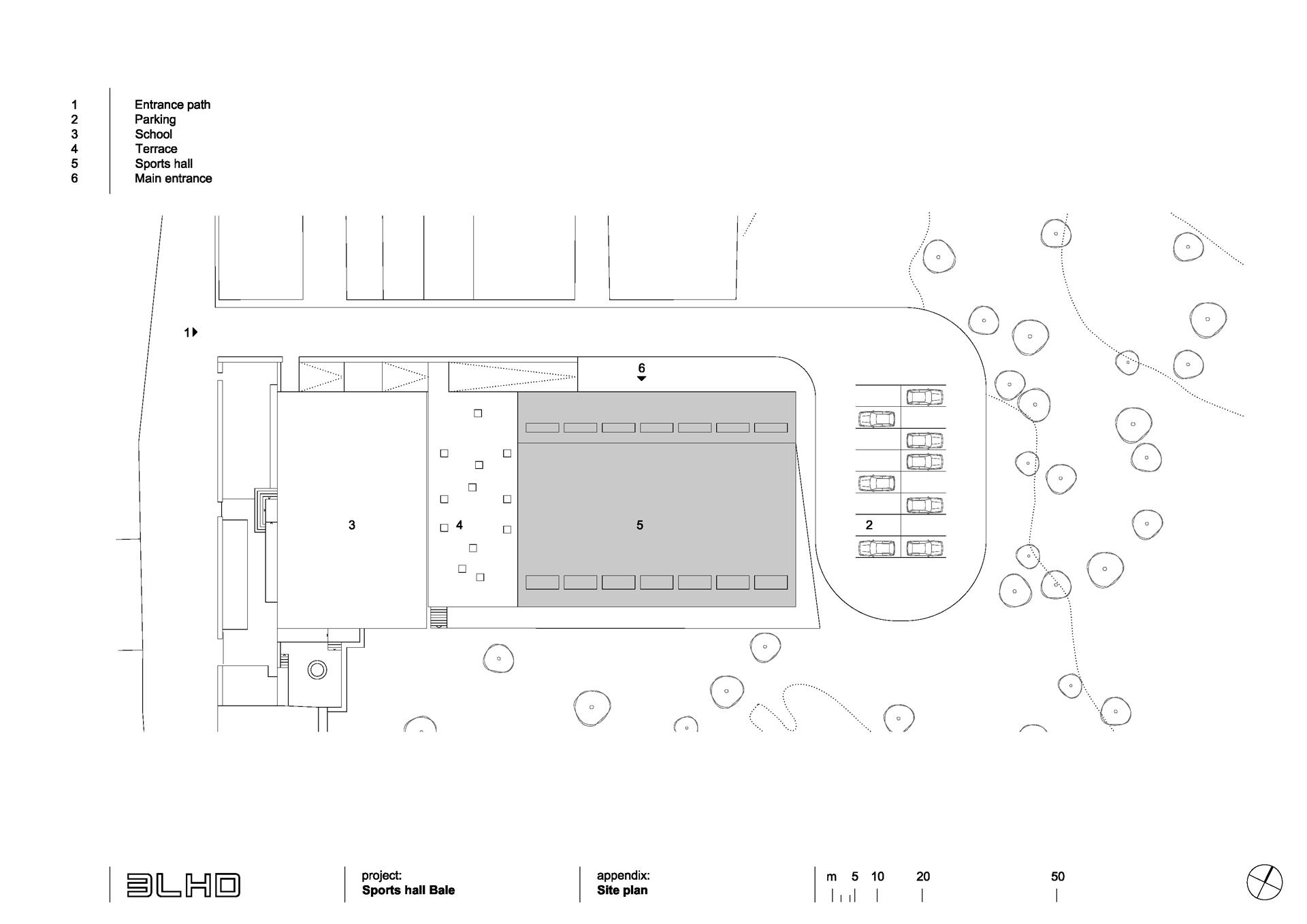
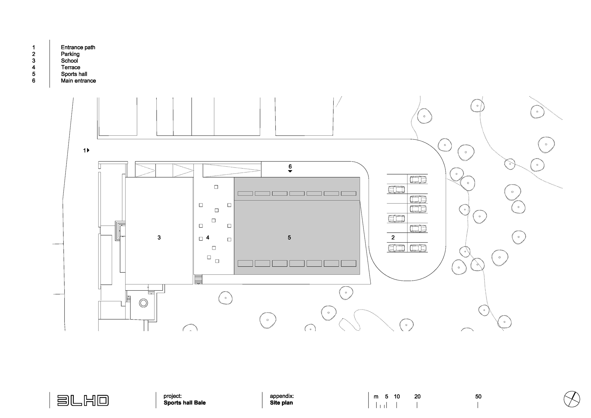
Drawings
Construction site
Back to top
Back to project